- Ref. KRE19214
- Plot 1025 m²
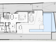
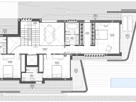
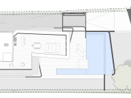
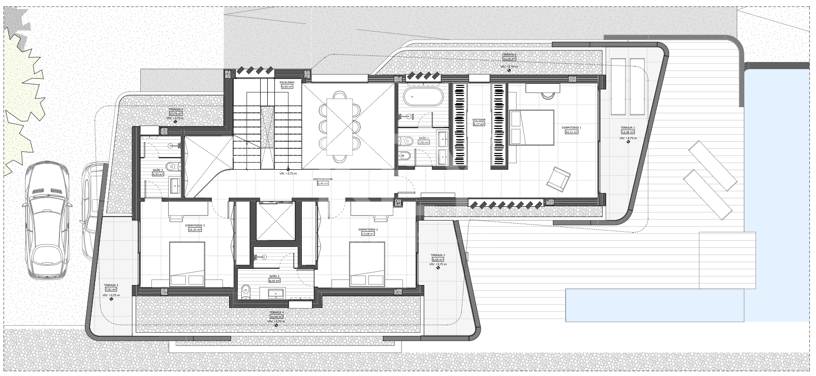
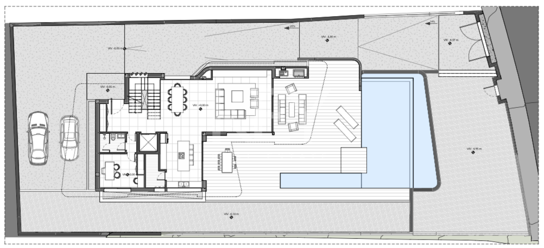
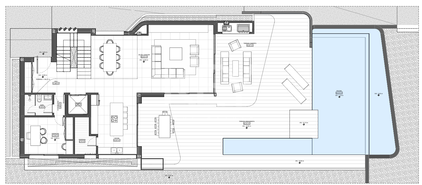
This residential plot with an approved contemporary villa project offers a solid opportunity to build a modern home in one of Marbella’s established hillside residential areas. The plot is sold together with a fully developed architectural concept, allowing a buyer to move forward with confidence while retaining the flexibility to personalise finishes and selected design elements.
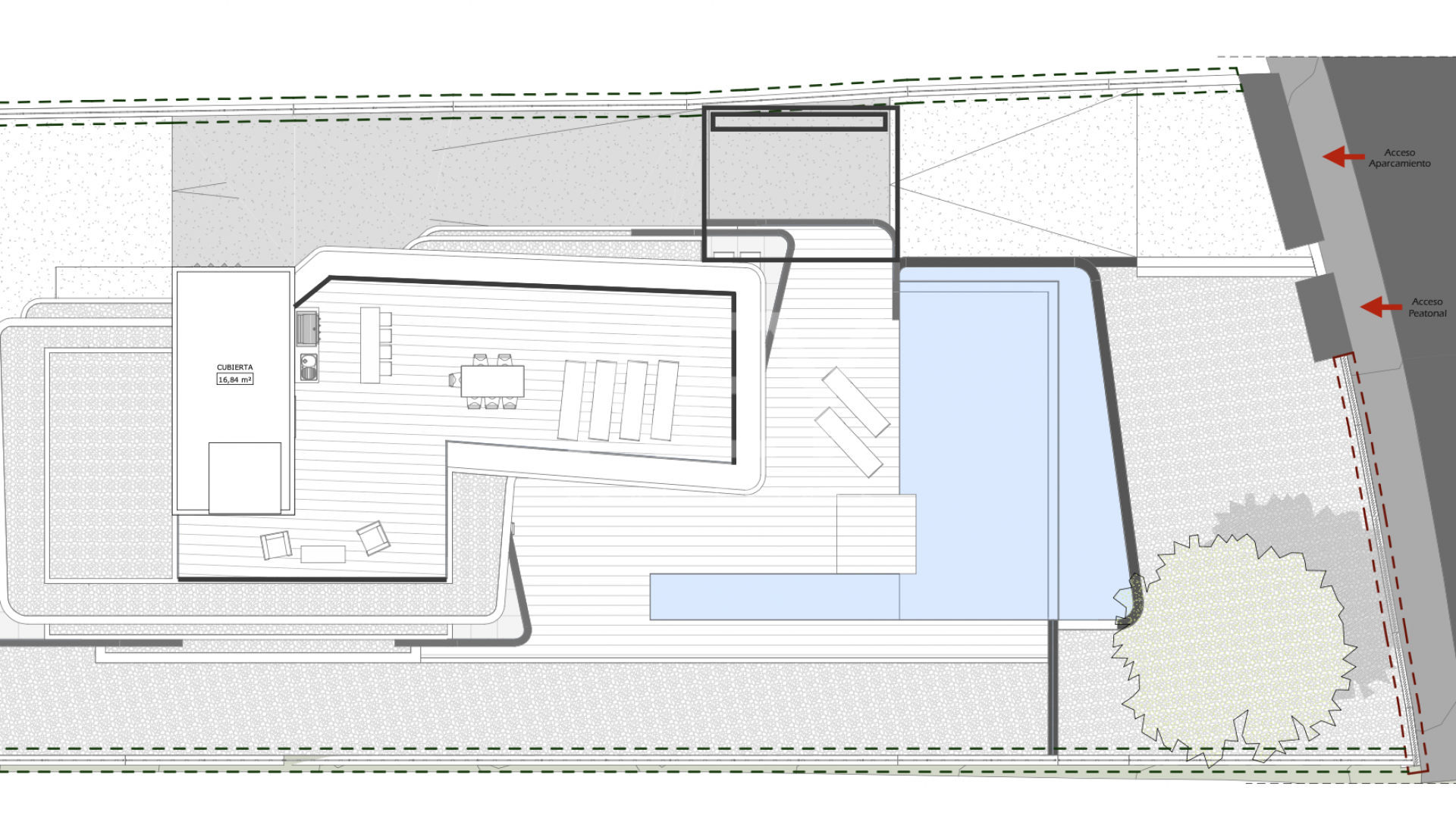
The elevated position provides open views towards the Mediterranean Sea and the surrounding mountain landscape. The proposed project has been designed to prioritise natural light, privacy, and a strong connection between interior and exterior spaces. The architectural concept includes a multi-level villa with spacious terraces, landscaped outdoor areas, and dedicated leisure zones, creating a balanced layout suited to both everyday living and entertaining.
The location is a key factor in the appeal of this opportunity. The plot is located in a consolidated residential area just a short drive from Marbella town centre. Beaches, beach clubs, restaurants, and shopping areas are easily accessible, making the setting practical for year-round living as well as for a second residence. The surrounding environment offers a sense of calm while remaining well connected to urban amenities.
Golf enthusiasts benefit from proximity to several recognised courses, including Río Real, Santa Clara, and Marbella Golf & Country Club. The area also provides access to sports facilities, fitness centres, and wellness services, supporting an active and comfortable lifestyle.
For families, the location is particularly convenient. A range of international and bilingual schools is located within a short driving distance, along with private clinics and the Costa del Sol Hospital. Supermarkets and everyday services are close by, ensuring ease of daily life without sacrificing the residential character of the area.
Road connections allow straightforward access to Marbella, Puerto Banús, and the wider Costa del Sol, while Málaga International Airport can be reached comfortably, offering direct connections to major European and international destinations. This accessibility enhances both lifestyle use and long-term investment potential.
From an investment perspective, this plot with project represents a well-defined development opportunity. The approved architectural concept reduces planning uncertainty and shortens preparation times, while the location continues to attract demand for contemporary new-build properties. It is suitable for private buyers seeking to build a customised home, as well as for investors focused on future resale or rental potential.
Offered through Key Real Estate, buyers benefit from a highly personal, advisory-led service. The team provides structured guidance throughout the entire process, from acquisition and project review to construction coordination and future resale or rental strategy, ensuring a transparent and well-managed experience from start to finish.
Additional information
- Fully fitted kitchen
- Close to shops
- Close to town
- Close to port
- Close to schools
- Office room
- Sauna
- Basement
- Solar panels
- Storage room
- Gym
- Solarium
- Brand new
- Dining room
- Barbecue
- Mountainside
- Guest toilet
- Living room
- Amenities near
- Sea view
- Mountain view
- Heated pool
- Underfloor heating (throughout)
- Transport near
- Laundry room
- Covered terrace
- Fitted wardrobes
- Air conditioning
- Lift
- Panoramic view
- Underfloor heating (bathrooms)
- Unfurnished
- Close to children playground
- Close to sea / beach
- Close to golf
- Games Room




























